Der Balkon der Gstaad Junior-Suite im Chalet Saane ermöglicht eine weite Sicht auf den Hotelpark und die dahinterliegenden Berge. Die Sitzecke lädt dazu ein, es sich gemütlich zu machen. Moderne Akzente verbinden sich mit regionaltypischer Holztäfelung und schaffen eine stilvolle und behagliche Atmosphäre.
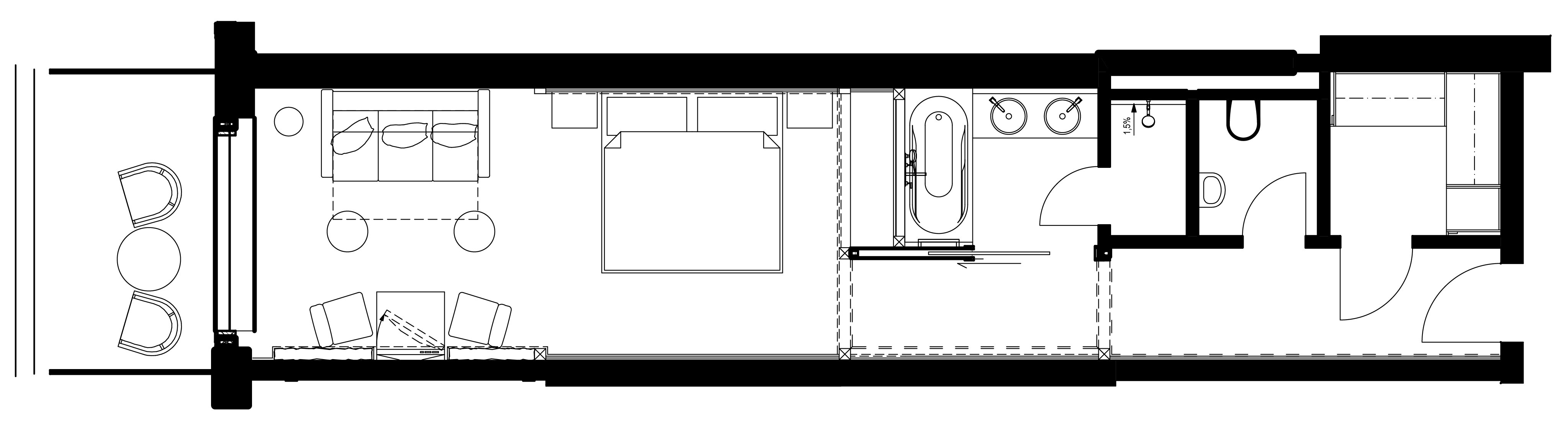
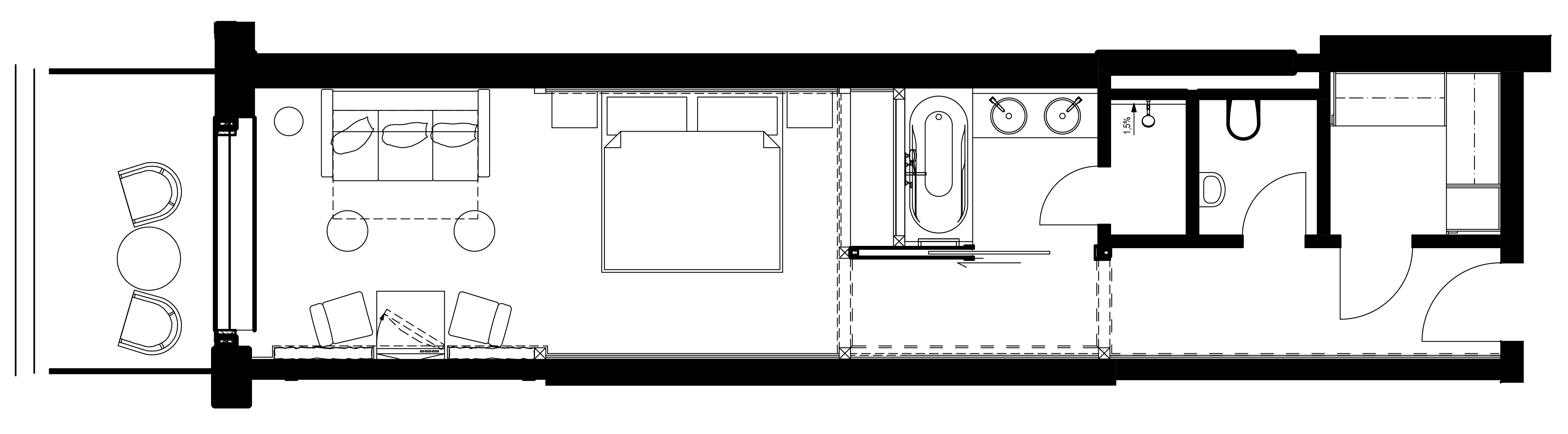
40 m²
Balkon zum Park
Sitzecke
Badezimmer mit Badewanne und Dusche
Bettengrösse mind. 2 × 100 × 200 cm
Parkettböden
Jedes Zimmer verfügt über
Make-up-Spiegel
Sat-TV
Minibar
Safe
Haartrockner
WLAN
ERMITAGE Rucksack und Wanderstöcke

Buchen